カレンダー
| 10 | 2025/11 | 12 |
| S | M | T | W | T | F | S |
|---|---|---|---|---|---|---|
| 1 | ||||||
| 2 | 3 | 4 | 5 | 6 | 7 | 8 |
| 9 | 10 | 11 | 12 | 13 | 14 | 15 |
| 16 | 17 | 18 | 19 | 20 | 21 | 22 |
| 23 | 24 | 25 | 26 | 27 | 28 | 29 |
| 30 |
カテゴリー
最新記事
(01/12)
(10/26)
(12/11)
(12/11)
(12/04)
ブログ内検索
カウンター
アクセス解析
アクセス解析
×
[PR]上記の広告は3ヶ月以上新規記事投稿のないブログに表示されています。新しい記事を書く事で広告が消えます。
敷地に余裕があり緑があふれているし、管理体制も

オーナーの承諾があれば賃貸でもペットが飼えるのも
いいんでしょうね。
そんなパークシティ本牧で自分でも住んでみたい物件
を今回はご紹介します。
最新のパークシティ本牧賃貸情報は
横濱本牧山手不動産情報
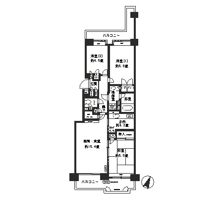
1軒目はG-511です。
この物件は南側に建物がない(道路)ので
開放感があって立地条件が魅力的です。
価格的にも77㎡タイプでは現在、最安値!
ペットも小型なら2匹までOKです


(ペット飼育の場合 敷金3ヶ月償却2ヶ月)
G棟外観
所在地 横浜市中区本牧原5-1-511
JR根岸線「石川町」バス利用
SRC造12階建5階部分 専有面積77.91㎡
築年月1987年3月築 駐車場有り
入居予定 即可 契約期間2年(更新可)
賃料156,000円 管理費8,000円
礼金2ヶ月 敷金2ヶ月 保険20,000円/2年
駐車場利用19,215円 エアコン CATV
オートロック 光ファイバー テニスコート有り
G-511間取図
次にお奨めなのがB-1204です。
魅力はなんといっても北側の素晴らしい眺望!
正面にみなとみらい、右手にはベイブリッジと
絵葉書になるような景色が一望できます。
最上階なので当然、花火大会のときは一等席に

内装も標準タイプに換えてオレンジ系カーペット
を使用しています。ひじょーに華やかですよ~
ペット不可なのが残念ですが、飼わない方には
ホント、お奨めです。7月中旬入居先取情報です。
B棟外観
所在地 横浜市中区本牧原2-2-1204
JR根岸線「石川町」バス利用
SRC造12階建12階部分 専有面積68.84㎡
築年月1987年3月築 駐車場有り
入居予定 即可 契約期間2年(更新可)
賃料162,000円 管理費8,000円
礼金2ヶ月 敷金2ヶ月 保険20,000円/2年
駐車場利用19,215円 エアコン CATV
オートロック 光ファイバー テニスコート有り
B-1204間取図 全ておかげさまで契約終了
最新のパークシティ本牧賃貸情報は
横濱本牧山手不動産情報
PR
この記事にコメントする