カレンダー
| 02 | 2026/03 | 04 |
| S | M | T | W | T | F | S |
|---|---|---|---|---|---|---|
| 1 | 2 | 3 | 4 | 5 | 6 | 7 |
| 8 | 9 | 10 | 11 | 12 | 13 | 14 |
| 15 | 16 | 17 | 18 | 19 | 20 | 21 |
| 22 | 23 | 24 | 25 | 26 | 27 | 28 |
| 29 | 30 | 31 |
カテゴリー
最新記事
(01/12)
(10/26)
(12/11)
(12/11)
(12/04)
ブログ内検索
カウンター
アクセス解析
アクセス解析
×
[PR]上記の広告は3ヶ月以上新規記事投稿のないブログに表示されています。新しい記事を書く事で広告が消えます。
パークシティ本牧G-608以外一瞬なくなりましたが
急にA-704が出てA棟狙ってたお客さんに紹介したらすぐ申込みに
でまたG-608だけになったら今度はH-1204,H-1104が登場・・・
この数日の話です(笑)
G,H,Iは南側が低層の老人ケアハウスなので立ち木の影響が無い
5階以上は日当たり眺望が魅力的です もっともパークシティ本牧は
すべて向かいの棟との空間が取れているので低層階以外は日当たり
良好なんですが・・・視覚に向かいの棟が入らない点ではG,H棟いいかも
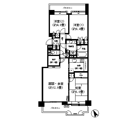
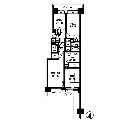
新しく出たH棟間取りは同じ 最上階1204は4000円高い 1104はペット可
H棟


南側 南側空間 間取図
H-1204詳細
H-1104詳細
急にA-704が出てA棟狙ってたお客さんに紹介したらすぐ申込みに
でまたG-608だけになったら今度はH-1204,H-1104が登場・・・
この数日の話です(笑)
G,H,Iは南側が低層の老人ケアハウスなので立ち木の影響が無い
5階以上は日当たり眺望が魅力的です もっともパークシティ本牧は
すべて向かいの棟との空間が取れているので低層階以外は日当たり
良好なんですが・・・視覚に向かいの棟が入らない点ではG,H棟いいかも
新しく出たH棟間取りは同じ 最上階1204は4000円高い 1104はペット可
H棟
南側 南側空間 間取図
H-1204詳細
H-1104詳細
いつまでも冷たいスープで過ごすわけもいかず
主食はソーメンに変更 ぬるま湯にナンプーラのにゅうめんスタイルで
しかし栄養価的に問題があることは間違いないのでバランスのいい食材を
探すと ありましたバナナが すぐに飽きそうなのでメニューを考案しました
大きめのバナナを等間隔で手でちぎり
深い器の中に投入
500wの電子レンジで3分過熱
取り出した器につめたい牛乳を注ぐ
ちょーカンタンですが注ぐ牛乳の量で
歯に滲みない温度に調節できるので
ビクビクしないですむのがミソ(笑)
牛乳も栄養価に貢献するし
さらに
器のセンターにアイスクリームを入れて液体チョコレートを振りかけ
刻んだイチゴやキウイをトッピング トップにはダークチェリーを1粒
見た目も華やかなデザートになりそうだが考えただけで歯が疼く
治ったらやってみるつもり 治んのかな・・・
主食はソーメンに変更 ぬるま湯にナンプーラのにゅうめんスタイルで
しかし栄養価的に問題があることは間違いないのでバランスのいい食材を
探すと ありましたバナナが すぐに飽きそうなのでメニューを考案しました
深い器の中に投入
500wの電子レンジで3分過熱
取り出した器につめたい牛乳を注ぐ
ちょーカンタンですが注ぐ牛乳の量で
歯に滲みない温度に調節できるので
ビクビクしないですむのがミソ(笑)
牛乳も栄養価に貢献するし
さらに
器のセンターにアイスクリームを入れて液体チョコレートを振りかけ
刻んだイチゴやキウイをトッピング トップにはダークチェリーを1粒
見た目も華やかなデザートになりそうだが考えただけで歯が疼く
治ったらやってみるつもり 治んのかな・・・