カレンダー
| 02 | 2026/03 | 04 |
| S | M | T | W | T | F | S |
|---|---|---|---|---|---|---|
| 1 | 2 | 3 | 4 | 5 | 6 | 7 |
| 8 | 9 | 10 | 11 | 12 | 13 | 14 |
| 15 | 16 | 17 | 18 | 19 | 20 | 21 |
| 22 | 23 | 24 | 25 | 26 | 27 | 28 |
| 29 | 30 | 31 |
カテゴリー
最新記事
(01/12)
(10/26)
(12/11)
(12/11)
(12/04)
ブログ内検索
カウンター
アクセス解析
アクセス解析
×
[PR]上記の広告は3ヶ月以上新規記事投稿のないブログに表示されています。新しい記事を書く事で広告が消えます。
午前中に買い物があって本牧イオンにいったところ
全国駅弁大会ってのをやっていて昼飯用に買った
魚屋の寿司を陳列棚に戻し弁当を物色した
いろんな弁当があってみているだけで面白かったが
直感的にはこれだと
しかしこのところ肉ばかりだしな
と迷いだし・・・
理由は最高値でサイズは小さい
ってことはさぞかしウニイクラが
てんこ盛りなんだろーそうに決まってる!
見ろよこのパッケージ溢れてんだろ
具沢山だぁー
イクラからはご飯が透けて見える
味が濃いから少な目かも・・・
一口食べて大後悔
不味かった 酢飯は甘ったるいし
ウニもダメ ホントダメダメ・・・
考えたら食べちゃいけないNo.1No.2のコラボ弁当
罰が当たることはまさしくこのことって感じでした とほほほ
PR
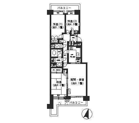
オーナーより連絡がありましてパークシティ本牧H-805,G-712が
大型犬飼育可 猫飼育可 多頭飼い相談となったとのこと
こじんまりとした62平米タイプ3LDKのH-805は賃料13万円
一方89平米タイプ4LDKのG-712はつながった3面バルコニーで
大型犬のドックランができそうな気がします 吠えながらだと
近所からクレームがきそうですが・・・賃料は18.5万円です


H-805間取図詳しくはこちら G-712間取図詳しくはこちら
大型犬飼育可 猫飼育可 多頭飼い相談となったとのこと
こじんまりとした62平米タイプ3LDKのH-805は賃料13万円
一方89平米タイプ4LDKのG-712はつながった3面バルコニーで
大型犬のドックランができそうな気がします 吠えながらだと
近所からクレームがきそうですが・・・賃料は18.5万円です
H-805間取図詳しくはこちら G-712間取図詳しくはこちら
最新のパークシティ本牧ペット可情報はこちら
夕べ会社に入りたがるジュニアを見て秋が来たことを実感
日中の暑さはまだ夏を思わせるが日が落ちるとやはり肌寒い
しかしジュニアの毛皮には夏の忘れ物がいっぱいいるので
室内には長く置いておけません 毛を掻き分けてみるとやはり
蚤が秋の大運動会を開催しておりました
空き箱で今年の猫小屋を作り出したが完成前にジュニアは
消えていた 時間に余裕ができたので捨てようと思っていた
ガラス板を思い出し今年はそれを使って窓をつけてみました
ヒーターは今年も健在で床に配置 電源コンセントを入れる
しかし昨夜ジュニアは帰ってこなかった・・・
ハイビスカスがまた咲き始めた
ので肥料をあげているとJr登場
餌をあげたがたいして食べずに
やはり寒そうにしている
さっそく今年の猫小屋へ入れて
みたのが最初の写真です
入口に近づけると自らもぐりこんだ
毎年恒例で快適さも覚えている様子
しかし今年は窓付きなので勝手が
違うのかキョロキョロしていた
でも窓は嫌いじゃないみたい
こない 待ちに待った猫小屋
やはりすぐに寝てしまいました
設計事務所最適!としたのは代々設計事務所が借りていたという
とてもシンプルというかいい加減というか・・・しかし立地的に便利です
本日退去立会いで引越し最中だったので
内部写真はありませんが禁煙で使用して
いたのでとてもきれいでした ベランダから
の気持ちよい風が印象的でした
詳しくはこちら
ベランダからの眺望
開放感があり仕事の合間に
眺めると気分転換になりそうです
とてもシンプルというかいい加減というか・・・しかし立地的に便利です
本日退去立会いで引越し最中だったので
内部写真はありませんが禁煙で使用して
いたのでとてもきれいでした ベランダから
の気持ちよい風が印象的でした
詳しくはこちら
ベランダからの眺望
開放感があり仕事の合間に
眺めると気分転換になりそうです