カレンダー
| 02 | 2026/03 | 04 |
| S | M | T | W | T | F | S |
|---|---|---|---|---|---|---|
| 1 | 2 | 3 | 4 | 5 | 6 | 7 |
| 8 | 9 | 10 | 11 | 12 | 13 | 14 |
| 15 | 16 | 17 | 18 | 19 | 20 | 21 |
| 22 | 23 | 24 | 25 | 26 | 27 | 28 |
| 29 | 30 | 31 |
カテゴリー
最新記事
(01/12)
(10/26)
(12/11)
(12/11)
(12/04)
ブログ内検索
カウンター
アクセス解析
アクセス解析
×
[PR]上記の広告は3ヶ月以上新規記事投稿のないブログに表示されています。新しい記事を書く事で広告が消えます。
現在入居中のためまだご案内が出来ないベルハウスB号棟
気になる方のために空室時に撮影した写真を追加掲載します


テラス 玄関 フローリングは1F部分



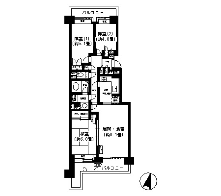
パーキング大小2台可 テラス水周り 間取図
詳細はこちら
気になる方のために空室時に撮影した写真を追加掲載します
テラス 玄関 フローリングは1F部分
パーキング大小2台可 テラス水周り 間取図
詳細はこちら
間門コミュニティハウスの正式名称です。
H.P.はこちら
ここのジャムは無添加なので強烈に甘いのですが
防腐剤を入れないのだから当然。ヨーグルトに入れる
にはもってこいのジャムです。
バザーの終わり間際にお邪魔して買ってきたものは右から
甘夏とりんごのジャム¥600
ネコ看板¥1000
ネコ玩具3つで¥100!!
ネコ玩具新品なのに・・・
お得感いっぱいでした
これから第2日曜日に定期的チャリティイベントを行うそうです。
バザーのほかにもケイさんのライブなど予定しているとのこと。
楽しみにしています。頑張ってください!
H.P.はこちら
ここのジャムは無添加なので強烈に甘いのですが
防腐剤を入れないのだから当然。ヨーグルトに入れる
にはもってこいのジャムです。
バザーの終わり間際にお邪魔して買ってきたものは右から
ネコ看板¥1000
ネコ玩具3つで¥100!!
ネコ玩具新品なのに・・・
お得感いっぱいでした
これから第2日曜日に定期的チャリティイベントを行うそうです。
バザーのほかにもケイさんのライブなど予定しているとのこと。
楽しみにしています。頑張ってください!